根据南宁市自然资源局批复的项目设计方案及总平面图,现将南宁市亭洪路72号河南水厂住宅小区危旧房改住房改造项目规划设计方案等公示如下:
一、公示内容:
(一)南宁市亭洪路72号河南水厂住宅小区危旧房改住房改造项目经济技术指标。
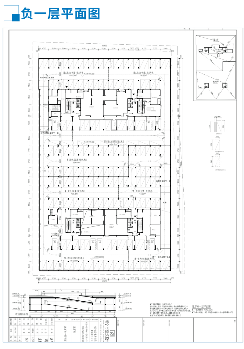
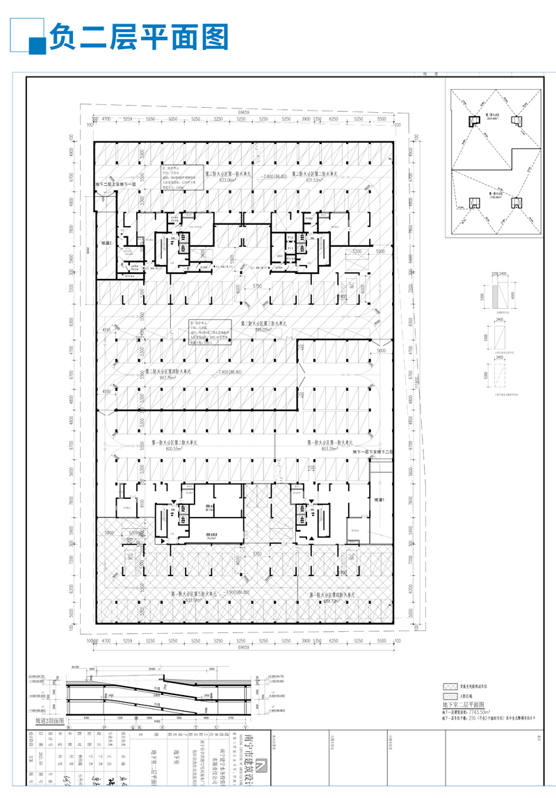
(1)总建筑面积75330.71平方米,其中住宅面积58939.346平方米,配套服务用房面积904.34平方米,地下面积15487平方米,绿地面积2370.28平方米。
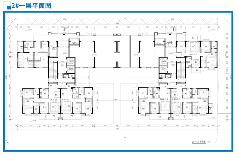
(2)住宅总套数522套,机动车停车位522个(其中地上108个,地下414个),非机动车位300个。
(3)日照分析表(详见附件)
(二)项目效果图、项目总平面图、各楼层平面图、屋顶平面图(详见附件)。
二、公示方式:
1、河南水厂住宅小区内公示牌。
2、鼎博app苹果版官方网站(/)
三、公示日期:
2021年7月19日——2021年8月2日
四、公示要求:
在公示期间,对公示内容如有异议的,请于上午9:00-12:00,下午3:00-6:00到旧改项目部(河南水厂文化楼三楼)咨询,或以书面、电话形式向我集团公司反映。
咨询电话:0771-4816631
特此通知。
附件:
(1)项目效果图
(2)总平面图
(3)日照分析表
(4)一至三十三层平面图
(5)屋顶平面图、地下室平面图













鼎博app苹果版
2021年7月19日
